Tom Cals
BA2
L’enjeu de ce projet est la réalisation d’un lieu productif au cœur de Bruxelles, en se posant la question de pourquoi produire en ville. Le travail consistait aussi à valoriser et utiliser un déjà là. La parcelle dans sa totalité est une dent creuse qui donne sur le quai de Mariemont et le canal avec un portique en acier qui permettait le (dé)chargement de matériel d’une péniche.
L’ilot est dense, la quasi-totalité est bâtie et laisse peu de zones ouvertes. Pour ce projet, je suis parti du postulat qu’un propriétaire possède la parcelle ainsi que les 2 bâtiments qui cernent celle-ci. C’est lors des visites du site et quelques discussions avec les habitants du quartier que les intentions de projet apparurent. Sur le lieu on se sentait à l’étroit, alors le mur existant sur le front de rue devait reculer ; je souhaitais exploiter l’existant avec des modifications mineures et faire en sorte que les espaces puissent s’articuler et donc permettre aux bâtiments de communiquer entre eux. Le plus gros enjeu du projet se joue alors sur le sol, il fallait alors définir des zones, des usages, des matérialités.
Le projet prend alors place au milieu de la parcelle, le flux de circulation le long du canal peut alors s’insérer à l’intérieur de la parcelle et offre un espace ouvert dans l’ilot et une relation directe au canal. La forme du projet est alors un rectangle qui se positionne parallèlement au mur arrière du fond de la parcelle. La structure organise l’espace et on retrouve une bande dédiée au personnel et le reste productif, rendant le projet totalement flexible. Par ailleurs, l’implantation définit les zones d’appropriation du public au privé et une circulation qui relie les bâtiments existants en passant ou qui peut être continue autour du projet.










Tom Cals
BA2










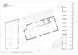
L’enjeu de ce projet est la réalisation d’un lieu productif au cœur de Bruxelles, en se posant la question de pourquoi produire en ville. Le travail consistait aussi à valoriser et utiliser un déjà là. La parcelle dans sa totalité est une dent creuse qui donne sur le quai de Mariemont et le canal avec un portique en acier qui permettait le (dé)chargement de matériel d’une péniche.
L’ilot est dense, la quasi-totalité est bâtie et laisse peu de zones ouvertes. Pour ce projet, je suis parti du postulat qu’un propriétaire possède la parcelle ainsi que les 2 bâtiments qui cernent celle-ci. C’est lors des visites du site et quelques discussions avec les habitants du quartier que les intentions de projet apparurent. Sur le lieu on se sentait à l’étroit, alors le mur existant sur le front de rue devait reculer ; je souhaitais exploiter l’existant avec des modifications mineures et faire en sorte que les espaces puissent s’articuler et donc permettre aux bâtiments de communiquer entre eux. Le plus gros enjeu du projet se joue alors sur le sol, il fallait alors définir des zones, des usages, des matérialités.
Le projet prend alors place au milieu de la parcelle, le flux de circulation le long du canal peut alors s’insérer à l’intérieur de la parcelle et offre un espace ouvert dans l’ilot et une relation directe au canal. La forme du projet est alors un rectangle qui se positionne parallèlement au mur arrière du fond de la parcelle. La structure organise l’espace et on retrouve une bande dédiée au personnel et le reste productif, rendant le projet totalement flexible. Par ailleurs, l’implantation définit les zones d’appropriation du public au privé et une circulation qui relie les bâtiments existants en passant ou qui peut être continue autour du projet.