Maé Lemal
BA1
L’idée principale du projet était de créer une auberge pour les cyclistes et les passants aux abords d’une piste cyclable.
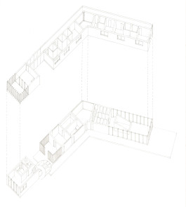
J’ai voulu mettre un lien entre mon bâtiment et le terrain exceptionnel dans lequel il se trouve. C’est pourquoi l’implantation du bâtiment sur la parcelle consiste à respecter un certain axe naturel dans sa longueur. J’ai ensuite profité de la proximité de l’eau pour créer un bief afin d’alimenter un moulin à eau qui apportera l'énergie nécessaire au bâtiment. En suivant ces axes, le bâtiment prend la forme de deux ailes.
Le bâtiment se trouve légèrement en retrait de la piste cyclable car celle-ci est également bordée d’une écluse faisant plus de 13m de haut. J’ai donc voulu mettre en retrait le bâtiment pour ne pas le mettre en concurrence avec l'écluse et également créer un espace de pause entre la piste cyclable et l'entrée.
La façade d'arrivée, celle qu’on aperçoit depuis la piste cyclable est relativement fermée car même les quelques fenêtres sont dissimulées derrière le bardage. Le seul élément explicite est le porche d'entrée accolé au moulin. Toute l’animation du lieu se trouve donc derrière cette façade uniforme.
De plus le bâtiment se trouve surélevé de 30 cm là ou le terrain se trouve être le plus plat, ceci permet de ne pas modifier le terrain initial et de tout de même s'installer dans la pente.
La circulation du bâtiment se fait à l'extérieur grâce à une passerelle surélevée tout comme le bâtiment qui dessert tous les espaces du rez-de-chaussée ; le terrain est laissé sauvage et est végétalisé pour créer une vraie relation avec la nature et permettre aux gens de s'approprier l'espace.
Au rez-de-chaussée on retrouve les espaces communs et ceux dédiés au vélo tandis qu'à l'étage se trouvent les chambres privées.










Maé Lemal
BA1










L’idée principale du projet était de créer une auberge pour les cyclistes et les passants aux abords d’une piste cyclable.
J’ai voulu mettre un lien entre mon bâtiment et le terrain exceptionnel dans lequel il se trouve. C’est pourquoi l’implantation du bâtiment sur la parcelle consiste à respecter un certain axe naturel dans sa longueur. J’ai ensuite profité de la proximité de l’eau pour créer un bief afin d’alimenter un moulin à eau qui apportera l'énergie nécessaire au bâtiment. En suivant ces axes, le bâtiment prend la forme de deux ailes.
Le bâtiment se trouve légèrement en retrait de la piste cyclable car celle-ci est également bordée d’une écluse faisant plus de 13m de haut. J’ai donc voulu mettre en retrait le bâtiment pour ne pas le mettre en concurrence avec l'écluse et également créer un espace de pause entre la piste cyclable et l'entrée.
La façade d'arrivée, celle qu’on aperçoit depuis la piste cyclable est relativement fermée car même les quelques fenêtres sont dissimulées derrière le bardage. Le seul élément explicite est le porche d'entrée accolé au moulin. Toute l’animation du lieu se trouve donc derrière cette façade uniforme.
De plus le bâtiment se trouve surélevé de 30 cm là ou le terrain se trouve être le plus plat, ceci permet de ne pas modifier le terrain initial et de tout de même s'installer dans la pente.
La circulation du bâtiment se fait à l'extérieur grâce à une passerelle surélevée tout comme le bâtiment qui dessert tous les espaces du rez-de-chaussée ; le terrain est laissé sauvage et est végétalisé pour créer une vraie relation avec la nature et permettre aux gens de s'approprier l'espace.
Au rez-de-chaussée on retrouve les espaces communs et ceux dédiés au vélo tandis qu'à l'étage se trouvent les chambres privées.