Francis Bryon
BA1
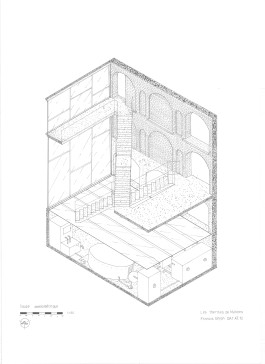
Malines est une ville historique de Belgique qui tire sa richesse de la Dyle. Les thermes de Malines utilisent l’énergie fournie par cette rivière en installant une roue à eau permettant d'alimenter les machineries du bâtiment.
Le but de ce projet est de créer un lieu d'accueil et de détente le long du cours d'eau pour les sportifs, promeneurs, cyclistes, et bien d'autres, en conservant le style et les traditions de la ville.
Ces idées sont mises en œuvre par une succession de 10 murs en briques avec des arcs parfois ouverts, parfois fermés, qui suggèrent la présence des thermes en rappelant la forme des aqueducs et créent une trame structurelle dans laquelle se trouvent les différentes pièces du bâtiment.
Au cœur de celui-ci, on trouve une grande pièce sur 3 niveaux articulant toutes les circulations entre les différents services qu'offre le lieu. Ce bloc central permet une vue plongeante sur les machineries des thermes se trouvant au sous-sol et crée aussi un lien avec l'extérieur en utilisant les mêmes briques que celles utilisées pour les façades.
Les thermes se situent au sous-sol permettant une vue sur la nature tout en conservant une certaine intimité et donnant la possibilité au restaurant de s'ouvrir entièrement vers la Dyle à l'aide de fenêtres accordéon. Les chambres sont situées au premier étage et possèdent une loggia apportant de l'ombre en été et créant aussi un lien intime avec le cours d’eau.
Cette architecture rythmée par les murs structuraux, jouant avec les matériaux, les formes d'ouverture, et combinée avec différentes machineries, permet aux visiteurs de passer un moment de détente agréable dans un style typique de Malines.










Francis Bryon
BA1










Malines est une ville historique de Belgique qui tire sa richesse de la Dyle. Les thermes de Malines utilisent l’énergie fournie par cette rivière en installant une roue à eau permettant d'alimenter les machineries du bâtiment.
Le but de ce projet est de créer un lieu d'accueil et de détente le long du cours d'eau pour les sportifs, promeneurs, cyclistes, et bien d'autres, en conservant le style et les traditions de la ville.
Ces idées sont mises en œuvre par une succession de 10 murs en briques avec des arcs parfois ouverts, parfois fermés, qui suggèrent la présence des thermes en rappelant la forme des aqueducs et créent une trame structurelle dans laquelle se trouvent les différentes pièces du bâtiment.
Au cœur de celui-ci, on trouve une grande pièce sur 3 niveaux articulant toutes les circulations entre les différents services qu'offre le lieu. Ce bloc central permet une vue plongeante sur les machineries des thermes se trouvant au sous-sol et crée aussi un lien avec l'extérieur en utilisant les mêmes briques que celles utilisées pour les façades.
Les thermes se situent au sous-sol permettant une vue sur la nature tout en conservant une certaine intimité et donnant la possibilité au restaurant de s'ouvrir entièrement vers la Dyle à l'aide de fenêtres accordéon. Les chambres sont situées au premier étage et possèdent une loggia apportant de l'ombre en été et créant aussi un lien intime avec le cours d’eau.
Cette architecture rythmée par les murs structuraux, jouant avec les matériaux, les formes d'ouverture, et combinée avec différentes machineries, permet aux visiteurs de passer un moment de détente agréable dans un style typique de Malines.