Solena Espelt, Nathalie Godon, Ornella-Gladys Nibigira
BA2
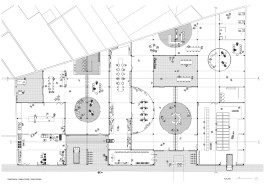
Tout a commencé lors de la phase d’observation, lors de laquelle nous avons, par groupe, analysé l’histoire et la composition parcellaire du site. Cette analyse nous a vite permis de prendre conscience de la qualité que cet îlot bruxellois a à offrir de l’espace au sol. Ceci nous a poussées à explorer le thème de la mitoyenneté,thème découlant de notre étude de site, servant de trame structurante pour le projet. Nous avons ainsi décidé, dans un premier temps, d’y implanter 3 industries plutôt qu’une seule. Ainsi, le projet a découlé d’arrangements à 3.
Le projet consiste en une trame structurelle en acier, de 7 mètres par 5 mètres. Cette trame est constituée d’une première colonnade montant jusqu’à 4 mètres de haut, accueillant ensuite une seconde structure, permettant de répondre aux hauteurs d’un atelier de production, mais aussi de se raccrocher aux hauteurs mitoyennes afin de préserver le grain de l’îlot. Cette structure reste flexible. Ensuite, des panneaux en bois viennent déterminer les cloisons ainsi que les ouvertures, permettant de créer une communication entre les différentes industries (ressourcerie, atelier de céramique et centre de tri et réparation de vêtements). Ainsi, la structure et les éléments de cloison sont tous les deux démontables et remontables.
Le projet est tout d’abord constitué de trois parcelles, articulées autour de 2 limites « mitoyennes ». La notion de mitoyenneté a été questionnée et prend ici la forme de points de rencontre entre plusieurs industries, accueillant des usages mutualisés tels que les bureaux, des salles de conférence, des sanitaires ou encore la cafétéria.
Le projet a été envisagé de sorte qu’il puisse évoluer à travers le temps : la trame structurelle ainsi que les cloisons étant démontables, elles peuvent accueillir plus ou moins d’industries destinées à des productions différentes de la proposition ci-contre.









Solena Espelt, Nathalie Godon, Ornella-Gladys Nibigira
BA2









Tout a commencé lors de la phase d’observation, lors de laquelle nous avons, par groupe, analysé l’histoire et la composition parcellaire du site. Cette analyse nous a vite permis de prendre conscience de la qualité que cet îlot bruxellois a à offrir de l’espace au sol. Ceci nous a poussées à explorer le thème de la mitoyenneté,thème découlant de notre étude de site, servant de trame structurante pour le projet. Nous avons ainsi décidé, dans un premier temps, d’y implanter 3 industries plutôt qu’une seule. Ainsi, le projet a découlé d’arrangements à 3.
Le projet consiste en une trame structurelle en acier, de 7 mètres par 5 mètres. Cette trame est constituée d’une première colonnade montant jusqu’à 4 mètres de haut, accueillant ensuite une seconde structure, permettant de répondre aux hauteurs d’un atelier de production, mais aussi de se raccrocher aux hauteurs mitoyennes afin de préserver le grain de l’îlot. Cette structure reste flexible. Ensuite, des panneaux en bois viennent déterminer les cloisons ainsi que les ouvertures, permettant de créer une communication entre les différentes industries (ressourcerie, atelier de céramique et centre de tri et réparation de vêtements). Ainsi, la structure et les éléments de cloison sont tous les deux démontables et remontables.
Le projet est tout d’abord constitué de trois parcelles, articulées autour de 2 limites « mitoyennes ». La notion de mitoyenneté a été questionnée et prend ici la forme de points de rencontre entre plusieurs industries, accueillant des usages mutualisés tels que les bureaux, des salles de conférence, des sanitaires ou encore la cafétéria.
Le projet a été envisagé de sorte qu’il puisse évoluer à travers le temps : la trame structurelle ainsi que les cloisons étant démontables, elles peuvent accueillir plus ou moins d’industries destinées à des productions différentes de la proposition ci-contre.