Jeanne Azemar
BA2
Pour ce projet situé à Molenbeek, je me suis intéressée à la temporalité des bâtiments dans la ville.
Le rythme étant de plus en plus individualisé, il y a des inégalités face aux rapports de temps.
Ce projet représente différentes approches temporelles relatives aux usages qu’ils soient quotidiens ou exceptionnels, et concilie différents rythmes entre la production et la ville.
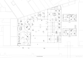
Afin de marquer ces différentes temporalités j’ai élaboré une trame basée sur le bâtiment existant. Elle s’établit sur la division en 4 de ce « hangar », afin de s’adapter à une échelle plus domestique de 3m40 par 3m40. L’idée était de composer avec ce déjà-là, en apportant certaines modifications.
Les deux arcs de cercles vont permettre de structurer l’espace, ils s’opposent à la trame régulière par un changement de rythme lié aux circulations du public. Lorsque le mouvement de la ville rentre dans l’espace, ces flux urbains génèrent cet espace et le temps et le rythme le définissent.
Cette trame va permettre de proposer des espaces polyvalents appropriables en fonction des différents usages, évènements et rythmes changeants au cours de la journée.
Du côté de l’espace productif, la trame structurelle se densifie, elle représente le rythme de la production, rapide et intense.
La toiture en shed permet un apport de lumière et un dynamisme visuel depuis la place.
Actuellement le type de production est du triage textile mais cette activité n’est pas figée et l’organisation de ce bâtiment ouvre à d’autres productions possibles.
Les différents espaces sont en plan libre et permettent aux usagers de se les approprier, ce sont des espaces flexibles au quotidien mais aussi à plus long terme.
Au niveau de la composition de l’espace central, j’ai voulu proposer un ralentissement du rythme urbain effréné. Cet espace central accessible au public est totalement ouvert et dégagé il permet de s’arrêter, de ralentir, de s’adonner à une expérience contemplative. Il peut aussi devenir un espace plus festif avec des concerts, des défilés, expositions. Il devient un point de rencontre et de partage. Cette polyvalence des espaces permet d’augmenter la mixité et créer des frictions sociales.




















Jeanne Azemar
BA2




















Pour ce projet situé à Molenbeek, je me suis intéressée à la temporalité des bâtiments dans la ville.
Le rythme étant de plus en plus individualisé, il y a des inégalités face aux rapports de temps.
Ce projet représente différentes approches temporelles relatives aux usages qu’ils soient quotidiens ou exceptionnels, et concilie différents rythmes entre la production et la ville.
Afin de marquer ces différentes temporalités j’ai élaboré une trame basée sur le bâtiment existant. Elle s’établit sur la division en 4 de ce « hangar », afin de s’adapter à une échelle plus domestique de 3m40 par 3m40. L’idée était de composer avec ce déjà-là, en apportant certaines modifications.
Les deux arcs de cercles vont permettre de structurer l’espace, ils s’opposent à la trame régulière par un changement de rythme lié aux circulations du public. Lorsque le mouvement de la ville rentre dans l’espace, ces flux urbains génèrent cet espace et le temps et le rythme le définissent.
Cette trame va permettre de proposer des espaces polyvalents appropriables en fonction des différents usages, évènements et rythmes changeants au cours de la journée.
Du côté de l’espace productif, la trame structurelle se densifie, elle représente le rythme de la production, rapide et intense.
La toiture en shed permet un apport de lumière et un dynamisme visuel depuis la place.
Actuellement le type de production est du triage textile mais cette activité n’est pas figée et l’organisation de ce bâtiment ouvre à d’autres productions possibles.
Les différents espaces sont en plan libre et permettent aux usagers de se les approprier, ce sont des espaces flexibles au quotidien mais aussi à plus long terme.
Au niveau de la composition de l’espace central, j’ai voulu proposer un ralentissement du rythme urbain effréné. Cet espace central accessible au public est totalement ouvert et dégagé il permet de s’arrêter, de ralentir, de s’adonner à une expérience contemplative. Il peut aussi devenir un espace plus festif avec des concerts, des défilés, expositions. Il devient un point de rencontre et de partage. Cette polyvalence des espaces permet d’augmenter la mixité et créer des frictions sociales.