La maison des talents partagés s’insère dans une parcelle d’angle dans la commune de Forest à Bruxelles. Le site se trouve dans une zone de transition entre tissu urbain résidentielle et ville industrielle. Il s’agit ici par ce projet de créer de nouvelles opportunités pour renforcer le lien social du lieu étant donné sa situation géographique particulière.
Ce fragment de ville est une zone à consolider et requalifier. L’intention du projet est de mettre en valeur un bâtiment d’impasse pour en intensifier l’usage des espaces sous-utilisé en interrogeant les passants. Ce projet est une opportunité pour reconstruire le milieu de vie du quartier sur lui-même.
Pour donner au projet son expression, un premier corps de bâtiment vient fermer la séquence de maison mitoyenne. Celui-ci est de l’ordre du logement et s’aligne à la hauteur moyenne de la rue. Un vide vient marquer une pause entre volumes. Il permet d’affirmer la fermeture d’un rythme et l’affirmation d’un volume qui est le bâtiment d’angle, l’antenne du quartier. Il est alors signal par le vide créé mais aussi par sa hauteur, par son caractère public et son ouverture. Il devient symbole, interroge, attire et renforce l’identité communautaire. Ce volume d’angle vient comme une ponctuation fermer la phrase qui est la rue. Il ne s’agit pas ici de séparer distinctivement les fonctions public-privé, mais d’en favoriser les interactions, il y a alors des terrasses qui interconnectes ces deux volumes.
Un socle s’affirme et assoit les deux volumes, il se différencie principalement par son horizontalité et son ouverture. Le socle et la matérialité en ardoise permettent de ressentir tout de même l’unité du projet. A l’inverse des volumes extrudés plus typique, la salle de spectacle semi-enterrée adopte une forme circulaire. Elle affirme ainsi sa propre identité, favorise l’interrogation et l’invitation.










Intentions
Atmosphère
Atmosphère
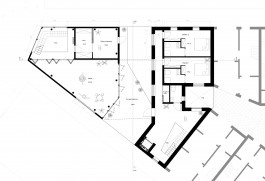
Plan d’implantation
Coupe d’implantation
Axonométrie
Plan R+1
Coupe perspective
Atmosphère
Collage










Intentions
Atmosphère
Atmosphère
Plan d’implantation
Coupe d’implantation
Axonométrie
Plan R+1
Coupe perspective
Atmosphère
Collage
La maison des talents partagés s’insère dans une parcelle d’angle dans la commune de Forest à Bruxelles. Le site se trouve dans une zone de transition entre tissu urbain résidentielle et ville industrielle. Il s’agit ici par ce projet de créer de nouvelles opportunités pour renforcer le lien social du lieu étant donné sa situation géographique particulière.
Ce fragment de ville est une zone à consolider et requalifier. L’intention du projet est de mettre en valeur un bâtiment d’impasse pour en intensifier l’usage des espaces sous-utilisé en interrogeant les passants. Ce projet est une opportunité pour reconstruire le milieu de vie du quartier sur lui-même.
Pour donner au projet son expression, un premier corps de bâtiment vient fermer la séquence de maison mitoyenne. Celui-ci est de l’ordre du logement et s’aligne à la hauteur moyenne de la rue. Un vide vient marquer une pause entre volumes. Il permet d’affirmer la fermeture d’un rythme et l’affirmation d’un volume qui est le bâtiment d’angle, l’antenne du quartier. Il est alors signal par le vide créé mais aussi par sa hauteur, par son caractère public et son ouverture. Il devient symbole, interroge, attire et renforce l’identité communautaire. Ce volume d’angle vient comme une ponctuation fermer la phrase qui est la rue. Il ne s’agit pas ici de séparer distinctivement les fonctions public-privé, mais d’en favoriser les interactions, il y a alors des terrasses qui interconnectes ces deux volumes.
Un socle s’affirme et assoit les deux volumes, il se différencie principalement par son horizontalité et son ouverture. Le socle et la matérialité en ardoise permettent de ressentir tout de même l’unité du projet. A l’inverse des volumes extrudés plus typique, la salle de spectacle semi-enterrée adopte une forme circulaire. Elle affirme ainsi sa propre identité, favorise l’interrogation et l’invitation.