De Molen Pools, renaissance d’un ancien hotspot Anversois
Ayman Ghazali
MicroMegasLab
D’un point de vue Macro, la proposition s’inscrit dans le nouveau modèle de développement qui couvre 6 zones autour du ring d’Anvers (Over the ring). Le projet se situe sur la 6e zone, là où le but est de renforcer l'identité de la rive gauche de l’Escaut en la forgeant comme un vaste parc paysager qui constituera une destination récréative pour toute la ville.
La zone de la plage est choisie principalement pour deux raisons :
Le programme adopté est une réaction à l’enquête publique et au plan de mise en œuvre qui ont éprouvé le besoin d’avoir une piscine couverte en complément de l’actuel, chose qui permettra aux équipements de la zone de fonctionner en hiver tout comme en été. D’où l’intérêt de revaloriser une ancienne piscine en plein air à travers une extension spatiale assez spécifique aux exigences du site et celles du schéma de développement.
Deux réflexions ont évolué, à travers les dessins de recherche en atelier, pour prendre forme dans la proposition :










Programmation — piscine couverte
Localisation – ‘Over the ring’ zone ouest/Plage Sint-Anneke
Situation existante – De Molen Pool
Recherches spatiales
Situation projetée – De Molen Pools
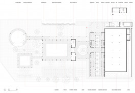
Plan RDC
Materialité – Coupe et détails constructifs
Ambiances – Vue depuis la piscine existante
Ambiances – Vue depuis l’intérieur du bassin couvert principal
Ambiances – Vue depuis l’intérieur du bassin d’apprentissage
De Molen Pools, renaissance d’un ancien hotspot Anversois
Ayman Ghazali
MicroMegasLab










Programmation — piscine couverte
Localisation – ‘Over the ring’ zone ouest/Plage Sint-Anneke
Situation existante – De Molen Pool
Recherches spatiales
Situation projetée – De Molen Pools
Plan RDC
Materialité – Coupe et détails constructifs
Ambiances – Vue depuis la piscine existante
Ambiances – Vue depuis l’intérieur du bassin couvert principal
Ambiances – Vue depuis l’intérieur du bassin d’apprentissage
D’un point de vue Macro, la proposition s’inscrit dans le nouveau modèle de développement qui couvre 6 zones autour du ring d’Anvers (Over the ring). Le projet se situe sur la 6e zone, là où le but est de renforcer l'identité de la rive gauche de l’Escaut en la forgeant comme un vaste parc paysager qui constituera une destination récréative pour toute la ville.
La zone de la plage est choisie principalement pour deux raisons :
Le programme adopté est une réaction à l’enquête publique et au plan de mise en œuvre qui ont éprouvé le besoin d’avoir une piscine couverte en complément de l’actuel, chose qui permettra aux équipements de la zone de fonctionner en hiver tout comme en été. D’où l’intérêt de revaloriser une ancienne piscine en plein air à travers une extension spatiale assez spécifique aux exigences du site et celles du schéma de développement.
Deux réflexions ont évolué, à travers les dessins de recherche en atelier, pour prendre forme dans la proposition :