Romane Rose-Cousquer
BA2
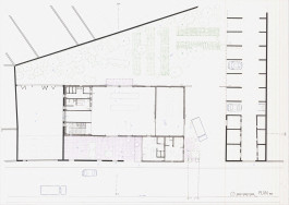
La première fois que je suis allée sur le site, j’ai été marqué par sa proximité au canal et à la rue. En étudiant le plan de l’ilot on se rend compte de sa densité et de l’absence de verdure. Cela m’a menée à créer des espaces extérieurs avec des qualités et des échelles différentes.
La disposition des bâtiments fait naître trois espaces extérieurs avec des caractères variés.
Je concentre les besoins à l’avant du site ce qui permet de libérer l’arrière de l’ilot.
J’ai eu envie de redonner de l’air et de la végétation à cet ilot, de déminéraliser le sol et de créer un écosystème comme une petite forêt. Cet espace arrière profite aux voisins, il offre une vue et donne aux habitants et aux employés le pouvoir d’imaginer, de décider et d’intervenir collectivement.
A l’avant, je viens créer une cour qui donne sur la rue, celle-ci est fermée par les bâtiments et le mur existant que je perce pour créer des vues et pour le rendre moins imposant.
Le quai de chargement et déchargement est accessible par l’entrée à droite.
Dans mon implantation j’essaie de dialoguer avec l’existant. J’utilise le bâtiment de droite pour garer les voitures et les vélos ainsi que pour du stockage. Une de mes halles s’implante dans celui de gauche.
Ma deuxième halle fait face à la rue, elle vient diviser le terrain.
La tour en brique est ma tour fonctionnelle, le volume technique. Elle crée un lien entre les deux halles et réunit tous les usages nécessaires au fonctionnement de celle-ci, sanitaires, bureaux, salle à manger, local technique.
L’idée est que ce bâtiment est une structure massive et les halles une structure légère afin que le noyau reste dans le temps tandis que le grand volume des halles puissent facilement être modifiable.
Le quatrième volume qui ferme la place contient l’accueil du public et la loge du gardien.










Romane Rose-Cousquer
BA2










La première fois que je suis allée sur le site, j’ai été marqué par sa proximité au canal et à la rue. En étudiant le plan de l’ilot on se rend compte de sa densité et de l’absence de verdure. Cela m’a menée à créer des espaces extérieurs avec des qualités et des échelles différentes.
La disposition des bâtiments fait naître trois espaces extérieurs avec des caractères variés.
Je concentre les besoins à l’avant du site ce qui permet de libérer l’arrière de l’ilot.
J’ai eu envie de redonner de l’air et de la végétation à cet ilot, de déminéraliser le sol et de créer un écosystème comme une petite forêt. Cet espace arrière profite aux voisins, il offre une vue et donne aux habitants et aux employés le pouvoir d’imaginer, de décider et d’intervenir collectivement.
A l’avant, je viens créer une cour qui donne sur la rue, celle-ci est fermée par les bâtiments et le mur existant que je perce pour créer des vues et pour le rendre moins imposant.
Le quai de chargement et déchargement est accessible par l’entrée à droite.
Dans mon implantation j’essaie de dialoguer avec l’existant. J’utilise le bâtiment de droite pour garer les voitures et les vélos ainsi que pour du stockage. Une de mes halles s’implante dans celui de gauche.
Ma deuxième halle fait face à la rue, elle vient diviser le terrain.
La tour en brique est ma tour fonctionnelle, le volume technique. Elle crée un lien entre les deux halles et réunit tous les usages nécessaires au fonctionnement de celle-ci, sanitaires, bureaux, salle à manger, local technique.
L’idée est que ce bâtiment est une structure massive et les halles une structure légère afin que le noyau reste dans le temps tandis que le grand volume des halles puissent facilement être modifiable.
Le quatrième volume qui ferme la place contient l’accueil du public et la loge du gardien.