Cloé Ledemé
HUB
Ce projet propose une nouvelle vision de l'architecture urbaine à Bruxelles, intégrant des fonctions résidentielles, sportives et universitaires dans un seul bâtiment. Inspiré du campus de la VUB, où ces fonctions sont divisées en plusieurs blocs, l'idée est de les fusionner pour créer un "complexe sportif habité", où les activités quotidiennes se mêlent au sport et au bien-être.
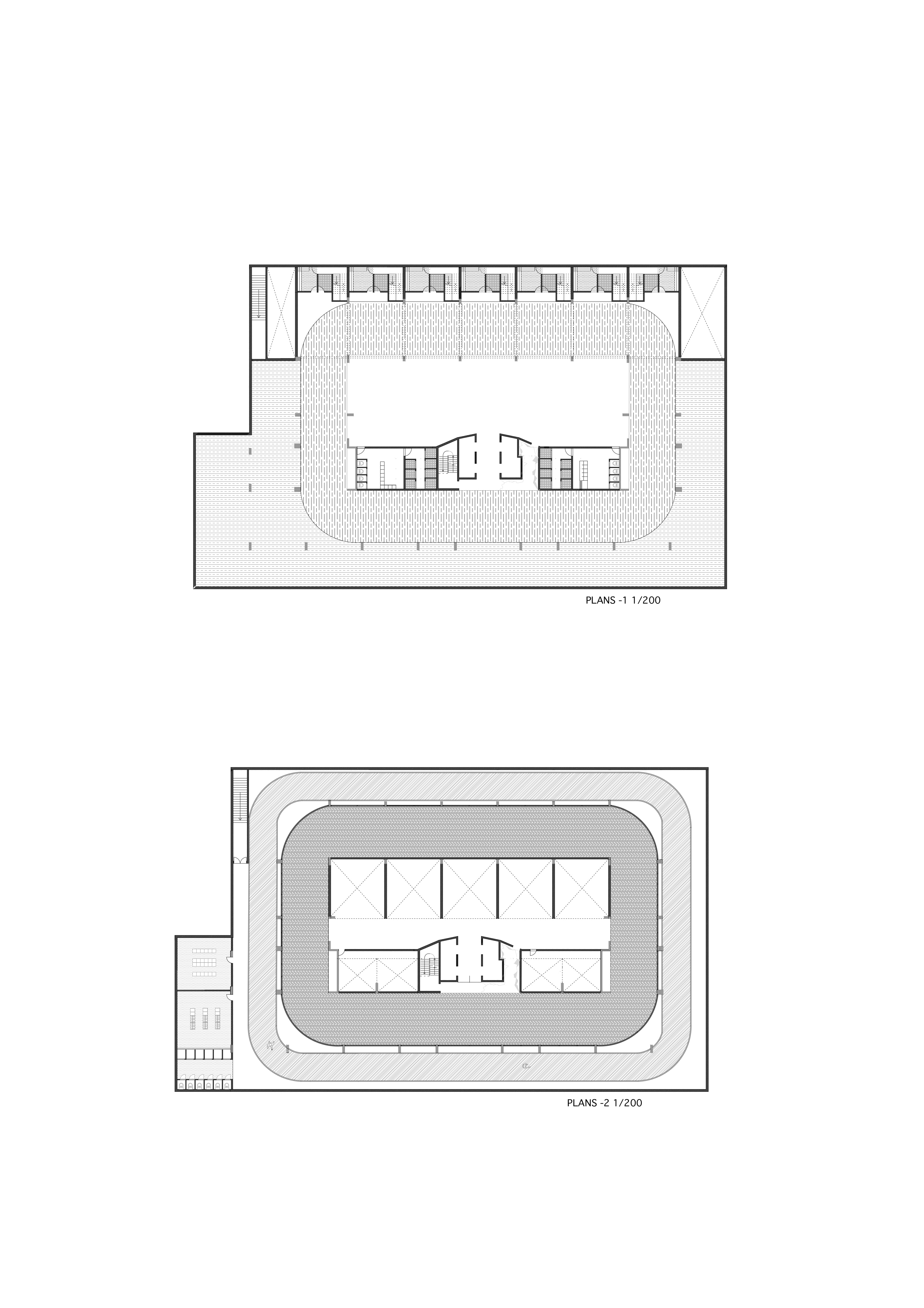
Le bâtiment conserve sa forme originale, avec des ajustements pour intégrer de nouvelles typologies d'espaces. L'entrée principale est maintenue, tandis qu'une nouvelle entrée côté gare dessert les résidences privées, facilitant l'accès pour les résidents tout en assurant une circulation fluide.
L'une des typologies clés est l'hybridation des logements étudiants avec des infrastructures sportives. Les résidents accèdent à leurs logements en vélo via une rampe cyclable traversant les étages, apportant du dynamisme à la façade et organisant les espaces intérieurs. Cette rampe devient un élément architectural influençant la circulation et l'utilisation des espaces.
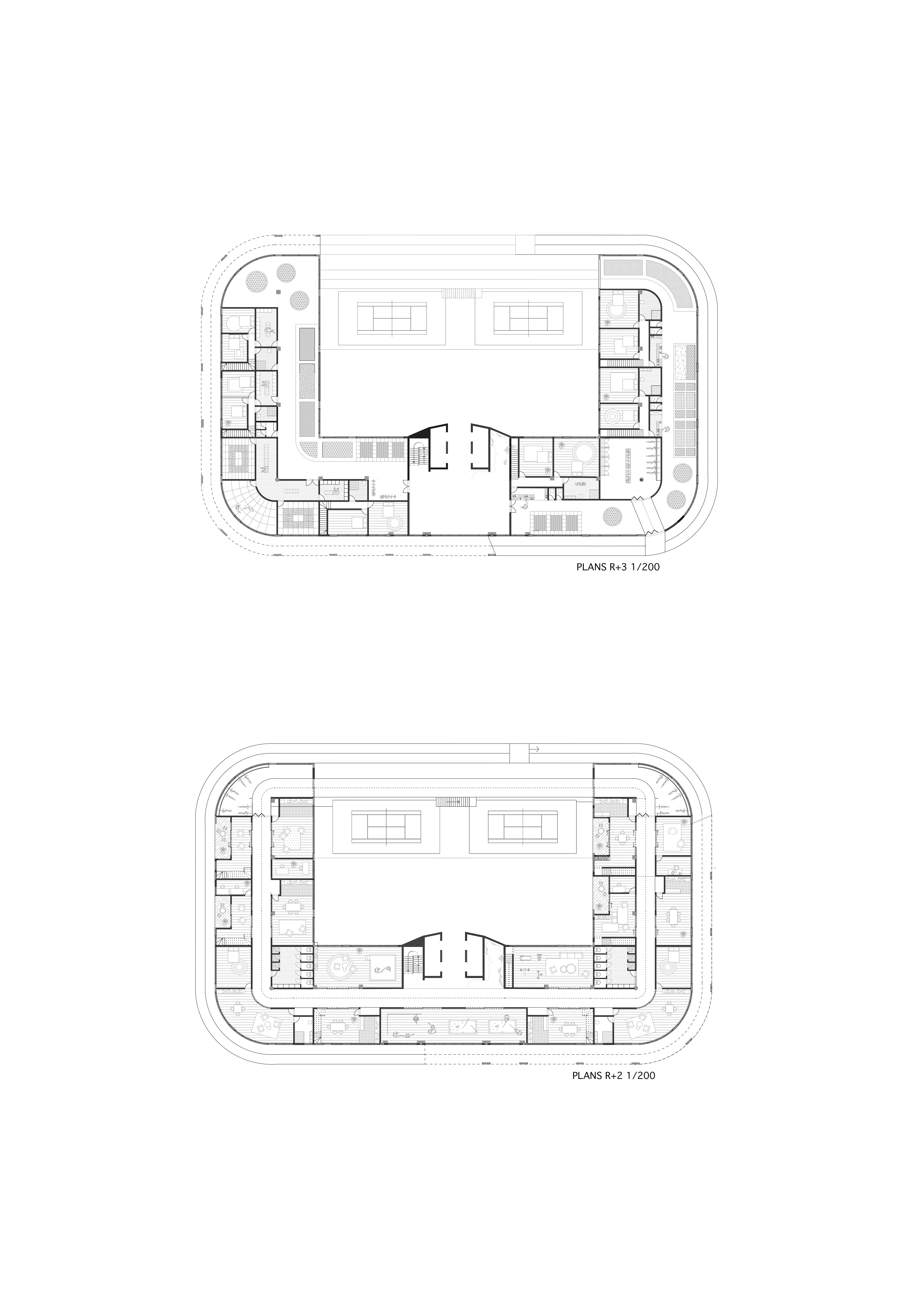
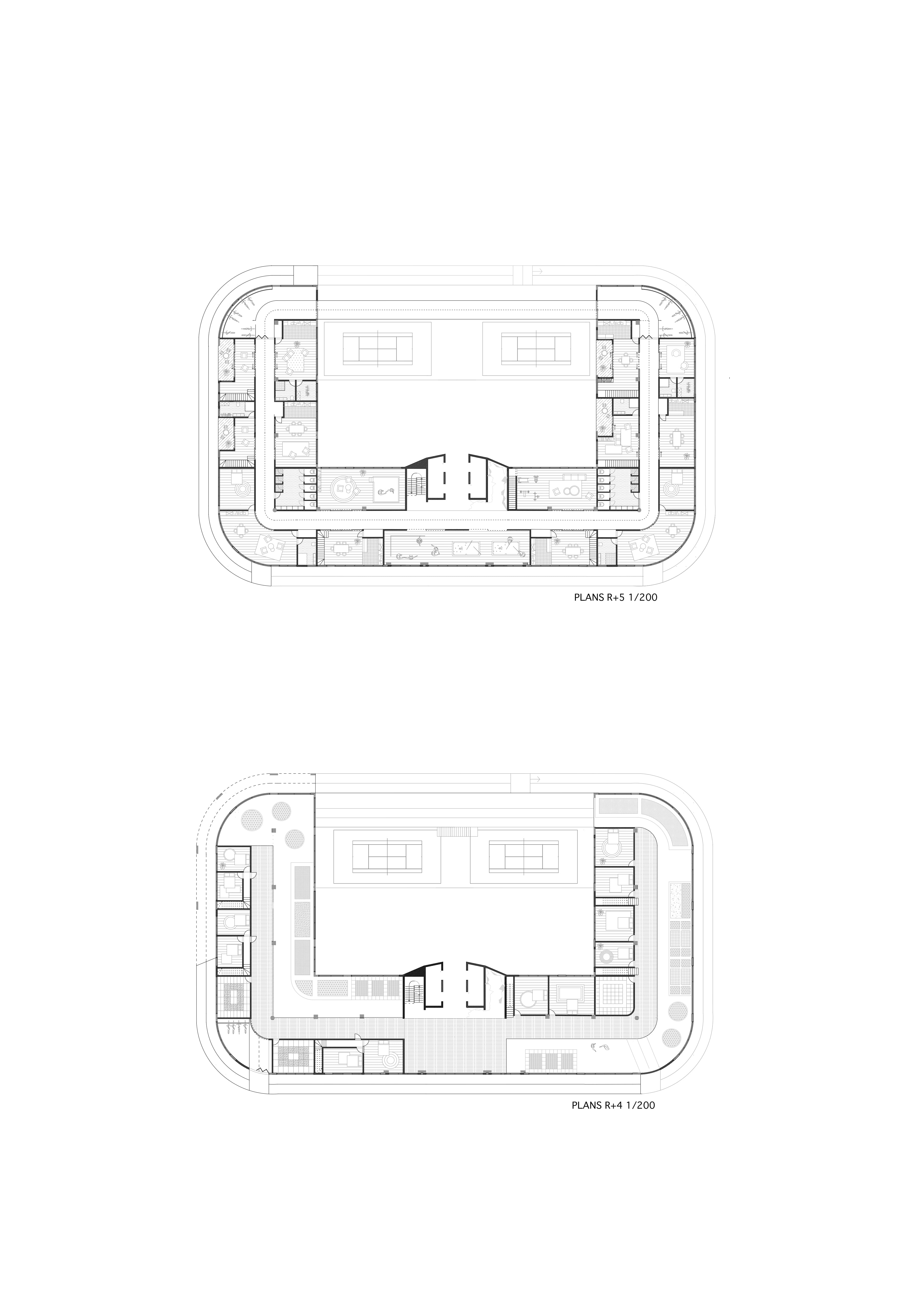
Les logements étudiants en duplex sont conçus avec un rez-de-chaussée semi-privé, où les espaces de vie sont séparés par une piste d’athlétisme, servant de circulation principale. Ces espaces se combinent avec des installations sportives, créant des salons qui font également office de salles de sport. L'étage supérieur, plus privé, abrite les chambres, connectées à un parc de trampolines en double hauteur. Les résidents partagent les vestiaires avec les visiteurs du parc, et ceux du deuxième étage profitent d'une mezzanine avec vue sur le parc.
Le sous-sol, était initialement destiné à un parking mais grâce aux nombreux transports en commun à proximité, il a été repensé en piscine, formant un espace en "O" entre les colonnes. La piscine permet de nager en continu, entourée de vestiaires publics et de saunas. Les logements situés à ce niveau disposent de terrasses privées avec des trappes pour sauter directement dans l'eau, et les salles de bain situées à l’étage inférieur sont connectées à la piscine et au sauna, renforçant l'hybridation entre vie quotidienne et sport.
D'autres espaces hybrides incluent un terrain de tennis sur le toit, une voie d'escalade et, au dernier niveau, une patinoire reprenant la forme de la piscine. Ce projet redéfinit les limites des espaces universitaires, créant un environnement où habitat et sport s’hybrident, offrant de nouvelles expériences aux habitants.








Cloé Ledemé
HUB








Ce projet propose une nouvelle vision de l'architecture urbaine à Bruxelles, intégrant des fonctions résidentielles, sportives et universitaires dans un seul bâtiment. Inspiré du campus de la VUB, où ces fonctions sont divisées en plusieurs blocs, l'idée est de les fusionner pour créer un "complexe sportif habité", où les activités quotidiennes se mêlent au sport et au bien-être.
Le bâtiment conserve sa forme originale, avec des ajustements pour intégrer de nouvelles typologies d'espaces. L'entrée principale est maintenue, tandis qu'une nouvelle entrée côté gare dessert les résidences privées, facilitant l'accès pour les résidents tout en assurant une circulation fluide.
L'une des typologies clés est l'hybridation des logements étudiants avec des infrastructures sportives. Les résidents accèdent à leurs logements en vélo via une rampe cyclable traversant les étages, apportant du dynamisme à la façade et organisant les espaces intérieurs. Cette rampe devient un élément architectural influençant la circulation et l'utilisation des espaces.
Les logements étudiants en duplex sont conçus avec un rez-de-chaussée semi-privé, où les espaces de vie sont séparés par une piste d’athlétisme, servant de circulation principale. Ces espaces se combinent avec des installations sportives, créant des salons qui font également office de salles de sport. L'étage supérieur, plus privé, abrite les chambres, connectées à un parc de trampolines en double hauteur. Les résidents partagent les vestiaires avec les visiteurs du parc, et ceux du deuxième étage profitent d'une mezzanine avec vue sur le parc.
Le sous-sol, était initialement destiné à un parking mais grâce aux nombreux transports en commun à proximité, il a été repensé en piscine, formant un espace en "O" entre les colonnes. La piscine permet de nager en continu, entourée de vestiaires publics et de saunas. Les logements situés à ce niveau disposent de terrasses privées avec des trappes pour sauter directement dans l'eau, et les salles de bain situées à l’étage inférieur sont connectées à la piscine et au sauna, renforçant l'hybridation entre vie quotidienne et sport.
D'autres espaces hybrides incluent un terrain de tennis sur le toit, une voie d'escalade et, au dernier niveau, une patinoire reprenant la forme de la piscine. Ce projet redéfinit les limites des espaces universitaires, créant un environnement où habitat et sport s’hybrident, offrant de nouvelles expériences aux habitants.