Fabriques
Matilde Baekelandt, Claire Couvreur, Louise Troosters
MML
Fabriques est un projet urbain, pensé sous le prisme de l’enfance et du jeu, qui réinvente le rez-de-chaussée d’un îlot de la Basse Ville, pour le transformer en un espace public et collectif, qui ne serait ni pour les adultes, ni pour les enfants, ni une cour d’école, ni un parc, ni un centre culturel, ni la petite plaine de jeux du coin, ni le club d’activités parascolaires, ni le lieu du marché le mercredi, ni la place de quartier, mais qui serait tout ça à la fois.
Il fait suite à un travail cartographique appelé "espaces de jeux" dans lequel notre regard s’est porté sur la manière dont les enfants prennent possession de l’espace urbain de la ville de Dunkerque, ville développée et pensée à grande échelle, afin de comprendre quels sont et où se situent les espaces pensés pour eux, qu’ils pratiquent, qu’ils s’approprient et qu’ils jouent.
C’est en Basse Ville où se trouve l’ilot de l’ancienne Minoterie Fichaux, dernier vestige industriel du quartier que nous avons trouvé notre terrain de jeu. Une fois les restes urbains de cet îlot hétéroclite soignés, libérés, révélés à nouveau et en attente de nouveaux usages, 10 fabriques, aux temporalités différentes, prennent place dans ce grand rez-de-chaussée. Que ce soit dessous, dessus, à travers, dedans, autour, à côté ou encore au milieu, chacune d’elles développe une relation particulière avec le déjà-là en dialoguant avec un élément de l’existant. Si elles fonctionnent indépendamment les unes des autres, elles révèlent leur force lorsqu’elles s’inscrivent dans une constellation d’ensemble et suggèrent, de cette manière, une appropriation nouvelle de l’îlot. Une fabrique est associée à un verbe, proposant ainsi un univers, une idée, que chaque usager peut appréhender différemment pour proposer continuellement des expériences renouvelées du lieu.
L’imaginaire du jeu est évoqué dans chacune de ces structures, sous de multiples formes: tantôt il devient l’outil de découverte de l’espace par les enfants, tantôt l’outil de réouverture de l’îlot, l’outil d’expression des acteurs du théâtre, l’outil de conception de l’architecture, l’outil de variation des sons, des formes, des couleurs et des matières. Ainsi, nous avons cherché à savoir si le jeu, sous toutes ses définitions, pouvait devenir l’outil de transformation de l’îlot de la minoterie Fichaux.












carte « Espaces de jeu »
Inventaire des plaines de jeux de Dunkerque
Axonométrie de la Basse-Ville
Axonométrie projetée de l’îlot de l'ancienne Minoterie Fichaux
Maquette des Fabriques et leurs rapports à l’existant
Ligne du temps de la mise en place des Fabriques
Les Fabriques
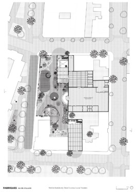
Rez-de-chaussée
Maquette de la Fabrique « Explorer »
Maquette de la Fabrique « Explorer »
Maquette de la Fabrique « Explorer »
Maquette de la Fabrique « Explorer »
Fabriques
Matilde Baekelandt, Claire Couvreur, Louise Troosters
MML












carte « Espaces de jeu »
Inventaire des plaines de jeux de Dunkerque
Axonométrie de la Basse-Ville
Axonométrie projetée de l’îlot de l'ancienne Minoterie Fichaux
Maquette des Fabriques et leurs rapports à l’existant
Ligne du temps de la mise en place des Fabriques
Les Fabriques
Rez-de-chaussée
Maquette de la Fabrique « Explorer »
Maquette de la Fabrique « Explorer »
Maquette de la Fabrique « Explorer »
Maquette de la Fabrique « Explorer »
Fabriques est un projet urbain, pensé sous le prisme de l’enfance et du jeu, qui réinvente le rez-de-chaussée d’un îlot de la Basse Ville, pour le transformer en un espace public et collectif, qui ne serait ni pour les adultes, ni pour les enfants, ni une cour d’école, ni un parc, ni un centre culturel, ni la petite plaine de jeux du coin, ni le club d’activités parascolaires, ni le lieu du marché le mercredi, ni la place de quartier, mais qui serait tout ça à la fois.
Il fait suite à un travail cartographique appelé "espaces de jeux" dans lequel notre regard s’est porté sur la manière dont les enfants prennent possession de l’espace urbain de la ville de Dunkerque, ville développée et pensée à grande échelle, afin de comprendre quels sont et où se situent les espaces pensés pour eux, qu’ils pratiquent, qu’ils s’approprient et qu’ils jouent.
C’est en Basse Ville où se trouve l’ilot de l’ancienne Minoterie Fichaux, dernier vestige industriel du quartier que nous avons trouvé notre terrain de jeu. Une fois les restes urbains de cet îlot hétéroclite soignés, libérés, révélés à nouveau et en attente de nouveaux usages, 10 fabriques, aux temporalités différentes, prennent place dans ce grand rez-de-chaussée. Que ce soit dessous, dessus, à travers, dedans, autour, à côté ou encore au milieu, chacune d’elles développe une relation particulière avec le déjà-là en dialoguant avec un élément de l’existant. Si elles fonctionnent indépendamment les unes des autres, elles révèlent leur force lorsqu’elles s’inscrivent dans une constellation d’ensemble et suggèrent, de cette manière, une appropriation nouvelle de l’îlot. Une fabrique est associée à un verbe, proposant ainsi un univers, une idée, que chaque usager peut appréhender différemment pour proposer continuellement des expériences renouvelées du lieu.
L’imaginaire du jeu est évoqué dans chacune de ces structures, sous de multiples formes: tantôt il devient l’outil de découverte de l’espace par les enfants, tantôt l’outil de réouverture de l’îlot, l’outil d’expression des acteurs du théâtre, l’outil de conception de l’architecture, l’outil de variation des sons, des formes, des couleurs et des matières. Ainsi, nous avons cherché à savoir si le jeu, sous toutes ses définitions, pouvait devenir l’outil de transformation de l’îlot de la minoterie Fichaux.