Zoé Maragou, Jakub Niemynski, Julien Rault, Sophie William
TRAME
La ville de Blankenberge, émerge aujourd’hui comme un joyau balnéaire. La ville souhaite profiter de cette situation unique en s’engageant sur la voie du développement tout en préservant son héritage historique. C’est à travers ce projet que s’inscrit le concours pour la réhabilitation de la maison communale. Situé à un carrefour stratégique, ce lieu aspire à devenir un repère emblématique, reliant fonctionnalité et esthétique.
Le projet souhaite profiter de cette situation en développant une barrière naturelle avec les axes routiers afin de créer un lieu protégé des nuisances et connecté au reste de la ville. Un travail des voiries est proposé pour ralentir et végétaliser la circulation automobile tout en offrant plus d’espace aux piétons et cyclistes. Deux pavillons, une guinguette et un club de pétanque, animeront les extrémités du site. La réorganisation des espaces offrira un accès piétonnier privilégié, tandis qu'un nouveau parvis marquera l'entrée de la maison communale.
La maison des jeunes sera relocalisée dans un bâtiment style renaissance Flamande présent sur le site, libérant ainsi l’espace pour une nouvelle salle des fêtes, entourée d'une galerie en arcade. Un jardin privé sera créé pour les usagers, tandis que la maison sociale sera légèrement réhabilitée pour accueillir la maison des jeunes. La galerie reliant les deux programmes permet aussi de créer un filtre entre la salle des fêtes et la nouvelle place.
L'extension de la maison communale s'inspire du projet initial du bourgmestre Maurice Devriendt, qui voulait y intégrer un colombier reprenant la typologie d’un phare. Bien que jamais réalisé, une arcade abrite aujourd’hui un local vélo.
La réhabilitation vise à revaloriser le hall d’entrée, avec un jeu de hauteurs et une meilleure connexion des espaces. Le rez-de-chaussée accueillera un musée de la ville et d'autres programmes publics seront installés dans les étages supérieurs de la tour. Le bâtiment abritera également les services municipaux, avec une circulation distincte pour les usagers et les travailleurs.
Le projet prévoit également une nouvelle salle de conseil en double hauteur, un centre d’apprentissage, ainsi que des bureaux modulables pour les services municipaux sur les étages de la tour. Un belvédère et un restaurant panoramique surplomberont la ville, offrant une vue imprenable sur la côte belge.










Le phare de Blankenberge
Plan d’implantation
Axonométrie programmatique
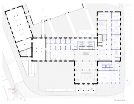
Plan du Rez-de-chaussée
Plans des étages de tour
Coupe
Plan du pôle social
Coupes et élévations du pôle social
Vues du restaurant et de la salle des fêtes
Coupe constructive et façade
Zoé Maragou, Jakub Niemynski, Julien Rault, Sophie William
TRAME










Le phare de Blankenberge
Plan d’implantation
Axonométrie programmatique
Plan du Rez-de-chaussée
Plans des étages de tour
Coupe
Plan du pôle social
Coupes et élévations du pôle social
Vues du restaurant et de la salle des fêtes
Coupe constructive et façade
La ville de Blankenberge, émerge aujourd’hui comme un joyau balnéaire. La ville souhaite profiter de cette situation unique en s’engageant sur la voie du développement tout en préservant son héritage historique. C’est à travers ce projet que s’inscrit le concours pour la réhabilitation de la maison communale. Situé à un carrefour stratégique, ce lieu aspire à devenir un repère emblématique, reliant fonctionnalité et esthétique.
Le projet souhaite profiter de cette situation en développant une barrière naturelle avec les axes routiers afin de créer un lieu protégé des nuisances et connecté au reste de la ville. Un travail des voiries est proposé pour ralentir et végétaliser la circulation automobile tout en offrant plus d’espace aux piétons et cyclistes. Deux pavillons, une guinguette et un club de pétanque, animeront les extrémités du site. La réorganisation des espaces offrira un accès piétonnier privilégié, tandis qu'un nouveau parvis marquera l'entrée de la maison communale.
La maison des jeunes sera relocalisée dans un bâtiment style renaissance Flamande présent sur le site, libérant ainsi l’espace pour une nouvelle salle des fêtes, entourée d'une galerie en arcade. Un jardin privé sera créé pour les usagers, tandis que la maison sociale sera légèrement réhabilitée pour accueillir la maison des jeunes. La galerie reliant les deux programmes permet aussi de créer un filtre entre la salle des fêtes et la nouvelle place.
L'extension de la maison communale s'inspire du projet initial du bourgmestre Maurice Devriendt, qui voulait y intégrer un colombier reprenant la typologie d’un phare. Bien que jamais réalisé, une arcade abrite aujourd’hui un local vélo.
La réhabilitation vise à revaloriser le hall d’entrée, avec un jeu de hauteurs et une meilleure connexion des espaces. Le rez-de-chaussée accueillera un musée de la ville et d'autres programmes publics seront installés dans les étages supérieurs de la tour. Le bâtiment abritera également les services municipaux, avec une circulation distincte pour les usagers et les travailleurs.
Le projet prévoit également une nouvelle salle de conseil en double hauteur, un centre d’apprentissage, ainsi que des bureaux modulables pour les services municipaux sur les étages de la tour. Un belvédère et un restaurant panoramique surplomberont la ville, offrant une vue imprenable sur la côte belge.